今すぐお問い合わせ

施工事例

WORKS

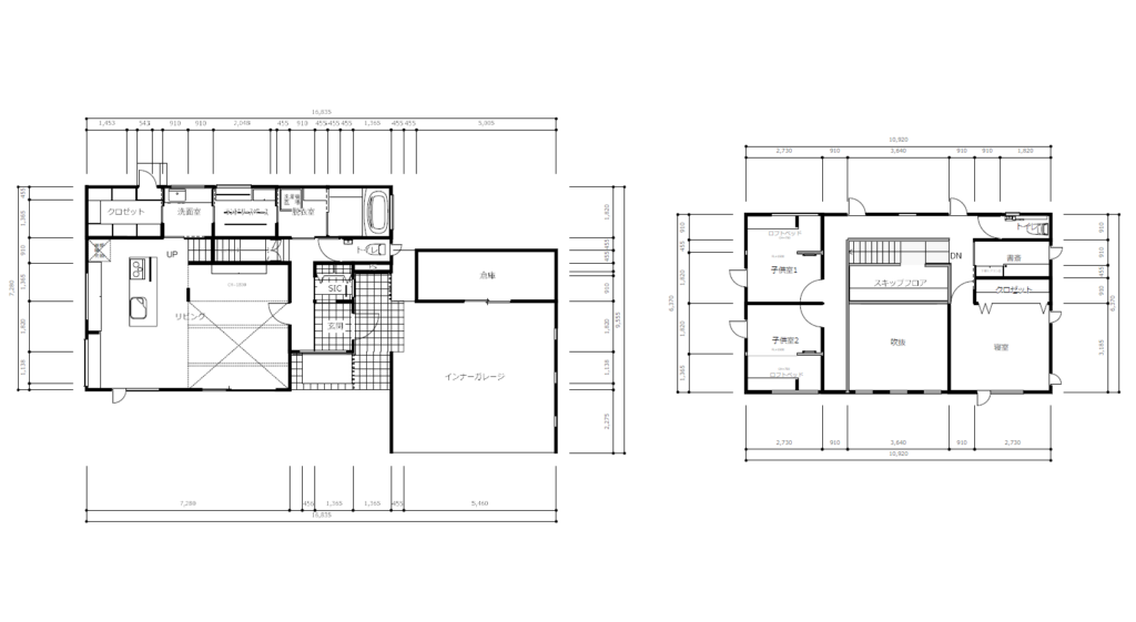
スキップフロア×吹き抜けで三層の空間が程よく繋がる住まい

LDKは吹き抜けで開放感たっぷりで家族の気配を自然に伝えます。
スキップフロアならではの視線の抜けが、限られた空間に想像以上の広がりを創出。
家族がそれぞれの時間を過ごしながらも緩やかに繋がり—— 近すぎず、遠すぎない。
現代の暮らしにふさわしい、理想的な距離間を実現しました。
また、家事の負担を考慮した回遊できる家事動線も叶え日々の生活もストレスフリーに。

HOUSE DATE

建物

戸建て

面積

117.41㎡ (35.52坪)

施工期間

6ヵ月

場所

黒部市

間取り

3LDK

検討メーカー数

フォトギャラリー

01

リビング

吹き抜けリビングで日当たりも良く開放的な空間

02

二本の化粧梁がアクセントになり空間にメリハリを生み出します

03

ダイニング

キッチン横のカウンターはお子様の学習スペースに最適です

04

キッチン

【LIXLリシェル】
セラミックトップの美しさと耐久性、ミニマルデザインの洗練された外観が特徴

05

動きやすく回遊性に長けたアイランドキッチン

06

家族の様子を見守りながらお料理もできる間取り

07

高天井ですっきりとした印象に

08

テレビボード下には間接照明を取り入れ浮遊感を演出

09

テレビ背面 エコカラットプラス
【 ストーングレース ダークグレー 】

10

リモコンもキッチン横にまとめた事で生活がぐっと効率的になります

11

1.5階の空間【スキップフロア】

12

家族の声を聞きながら自分時間を楽しめるとっておきの空間

13

ニッチ収納も豊富

14

視覚的にも楽しめるのがスキップフロアの魅力です

15

階段を上った先には旦那様の書斎を

16

書斎

色味を落としてリラックスできる空間を演出

17

雰囲気に合わせたバーチカルブラインド

18

ブラックの造作カウンターと棚が大人っぽさを引き立てます

19

2F 寝室

収納内にも照明を取り付けています

20

天井の間接照明が室内を優しく包み込みます

21

2Fトイレ

TOTO

22

スタイリッシュな見た目の吊り下げ照明を採用

23

2F ホール

24

全館空調なので場所を問わず快適な温度で過ごせます

25

あたたかな日差しが一日中家の中に入ります

26

2F ホール

27

2F 子供部屋

28

スタディスペースには造作カウンターを。照明が手元を明るく照らします

29

奥には収納スペースも

30

ロフト部分にはヘッドライトも設置

31

バスルーム

TOTOサザナ

32

1Fトイレ

TOTO

33

ランドリースペース

34

洗面室

間接照明がホテルライクで毎日の身支度も楽しくなりそうです

35

パントリー

可動式の為使いやすいよう調整も可能

36

エントランス

エントランスのFIX窓も存在感があり自然光を多く取り込みます

37

手すり付きで靴の脱ぎ履きをサポート

38

日中は照明を付けなくてもホールまで光が届きます

39

自然光がエントランスを優しく照らします

40

高い防露性で外からの視界もシャットダウン

41

観葉植物との組合わせも抜群

42

43

エントランス外

44

インナーガレージ

45

インナーガレージ奥 倉庫

46

ガレージ裏に設置した井戸水は毎日のガーデニングで大活躍

47

裏庭

人工芝を敷き家族みんなでのびのびできる空間に

48

外観

  • 01
  • 02
  • 03
  • 04
  • 05
  • 06
  • 07
  • 08
  • 09
  • 10
  • 11
  • 12
  • 13
  • 14
  • 15
  • 16
  • 17
  • 18
  • 19
  • 20
  • 21
  • 22
  • 23
  • 24
  • 25
  • 26
  • 27
  • 28
  • 29
  • 30
  • 31
  • 32
  • 33
  • 34
  • 35
  • 36
  • 37
  • 38
  • 39
  • 40
  • 41
  • 42
  • 43
  • 44
  • 45
  • 46
  • 47
  • 48

/

  • 01
  • 02
  • 03
  • 04
  • 05
  • 06
  • 07
  • 08
  • 09
  • 10
  • 11
  • 12
  • 13
  • 14
  • 15
  • 16
  • 17
  • 18
  • 19
  • 20
  • 21
  • 22
  • 23
  • 24
  • 25
  • 26
  • 27
  • 28
  • 29
  • 30
  • 31
  • 32
  • 33
  • 34
  • 35
  • 36
  • 37
  • 38
  • 39
  • 40
  • 41
  • 42
  • 43
  • 44
  • 45
  • 46
  • 47
  • 48

/

お問い合わせ

CONTACT

あなたのわがままをお聞かせください
営業時間
9:00~18:00(水曜日定休)