今すぐお問い合わせ

施工事例

WORKS

柔らかな木目が彩る和モダンな家

全体的に木の温もりをしっかりと感じられる、和モダンの住まい。
広々としたLDKは、柔らかな木目と優しい照明が心をほっと和ませます。
キッチンから和室までがひと続きになっており、家族の気配を感じながらゆったり過ごせる設計です。
現代的な使いやすさと日本らしい上質さが調和した、癒しの空間となっています。

HOUSE DATE

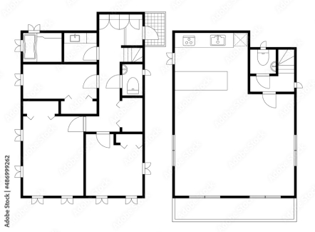
建物

一戸建て

面積

114.79㎡ (34.72坪)

施工期間

6か月

場所

立山町

間取り

4LDK

検討メーカー数

3社

フォトギャラリー

01

リビング

木の温もりに包まれた開放感あふれるLDK

02

リビング

キッチンに立ちながら、家族の気配を感じられる設計

03

和室

LDKと緩やかにつながる和室は、心を整えるくつろぎの場所

04

和室

やわらかな自然光が、日常に静かな癒しを与えます

05

キッチン

木のぬくもりを引き立てる洗練されたキッチン【TOTOザ・クラッソ】

06

キッチン

リモコンニッチはキッチンに集約

07

パントリー内も木目の可動棚

08

キッチン裏

水回りはキッチン裏にまとめた事で日々の家事の負担も軽減

09

木目を活かした造作洗面台で朝の身支度も気持ちよく

10

ランドリースペース

11

バスルーム

【 TOTOサザナ 】

12

ウォークインクローゼット

13

間接照明と木目のぬくもりでリラックスできる寝室

14

1F トイレ

15

2F ホール

16

子供部屋

17

2F トイレ

18

エントランス

収納力と動線を考えた、すっきりとした玄関まわり

19

エントランス

木目とグレーの組み合わせが和モダンな雰囲気を漂わせます

20

インナーガレージ

21

外観

22

外観(夜)

  • 01
  • 02
  • 03
  • 04
  • 05
  • 06
  • 07
  • 08
  • 09
  • 10
  • 11
  • 12
  • 13
  • 14
  • 15
  • 16
  • 17
  • 18
  • 19
  • 20
  • 21
  • 22

/

  • 01
  • 02
  • 03
  • 04
  • 05
  • 06
  • 07
  • 08
  • 09
  • 10
  • 11
  • 12
  • 13
  • 14
  • 15
  • 16
  • 17
  • 18
  • 19
  • 20
  • 21
  • 22

/

お問い合わせ

CONTACT

あなたのわがままをお聞かせください
営業時間
9:00~18:00(水曜日定休)